


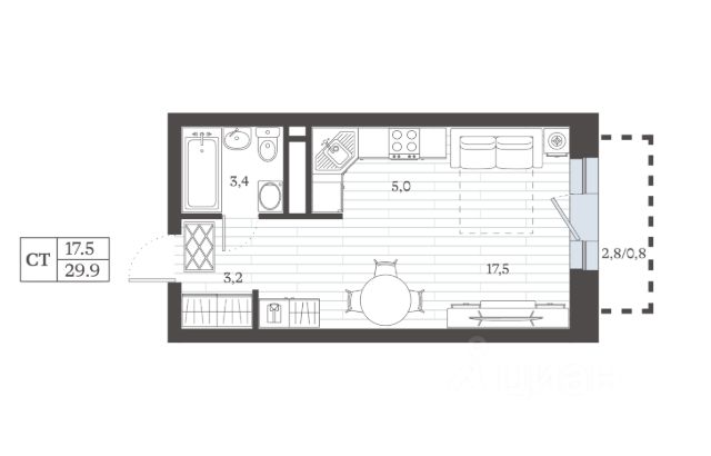
232 500 ₽/м²
Жилой квартал "Гранатовый" расположен в центре нового микрорайона Южный в г. Дербент, в непосредственной близости от знакового объекта — масштабного духовного центра. На прилегающей к ЖК териитории вырастет новый центр города — со школой и детскими садами, деловым кластером, торговым центром, аллеями и парками. Вокруг "Гранатового" появится масштабная курортная и туристическая зона мирового уровня. ------------------------------------------------- -------------------------------------------------- -------------- Предлагаем к продаже квартиру в корпусе класса "Комфорт+". Возможно приобретение в ипотеку со ставкой от 3, 5%, рассрочку от застройщика, с использованием субсидий и мат. капитала. В ЖК "Гранатовый" квартиры передаются в базовом варианте. В такой тип отделки входят: - Металлическая входная дверь; - Окна - стеклопакет, остекленные лоджии; - Корзины для кондиционеров с выведенными коммуникациями; - Стяжка пола; - Радиаторы центрального отопления; - Разводка электрики; - Вводы систем ГВС, ХВС и канализации, гидроизоляция в санузлах; - Счетчики воды, электричества и тепла; - Точки подключения к телевизионному, телефонному и интернет кабелю; -Домофония; Также имеется возможность приобретения квартир с отделками "Белый куб" и "Под ключ". Подробнее ознакомиться с вариантами отделки можно на нашем сайте. Класс энергоэффективности А. ------------------------------------------------- -------------------------------------------------- ---------------- Жилой комплекс "Гранатовый" строится в соответствии с 214 ФЗ — законом об эскроу-счетах. Проектное финансирование объекта ПАО "Сбербанк". Это гарантия того, что каждый корпус комплекса будет сдан вовремя и без задержек. ------------------------------------------------- -------------------------------------------------- ---------------- Приглашаем ознакомиться с проектом посредством виртуальной реальности в нашем офисе продаж. Подробности по телефону.















































































